PROGRAM
Private Residence
LOCATION
Brooklyn, NY
PROJECT TYPE
Interior & Exterior Townhouse Renovation
AREA
2,000 SF
PROGRAM
Private Residence
LOCATION
Brooklyn, NY
PROJECT TYPE
Interior & Exterior Townhouse Renovation
AREA
2,000 SF
EXTRO / INTRO RESIDENCE
EXTRO / INTRO RESIDENCE
Arper Booth
Arper Booth
BAR/RESTAURANT DESIGN
Mammoth
BAR/RESTAURANT DESIGN



Mammoth
PROGRAM
Event/Exhibition
LOCATION
Storefront for Art & Architecture,
New York
PROJECT TYPE
Event/Installation & Seat Design
AREA
840 SF
PHOTOGRAPHS
Naho Kubota
PROGRAM
Event/Exhibition
LOCATION
Storefront for Art & Architecture,
New York
PROJECT TYPE
Event/Installation & Seat Design
AREA
840 SF
PHOTOGRAPHS
Naho Kubota
PROGRAM
Event/Exhibition
LOCATION
Storefront for Art & Architecture,
New York
PROJECT TYPE
Event/Installation & Seat Design
AREA
840 SF
PHOTOGRAPHS
Naho Kubota
PROGRAM
Private Residence
LOCATION
Brooklyn, NY
PROJECT TYPE
Interior & Exterior Renovation
AREA
2,000 SF
ABOUT STUDIO
ABOUT STUDIO
APARTMENT RENOVATION
Adjoin Duplex

PROGRAM
Private Residence
LOCATION
Brooklyn, NY
PROJECT TYPE
Interior Renovation
AREA
1,000 SF
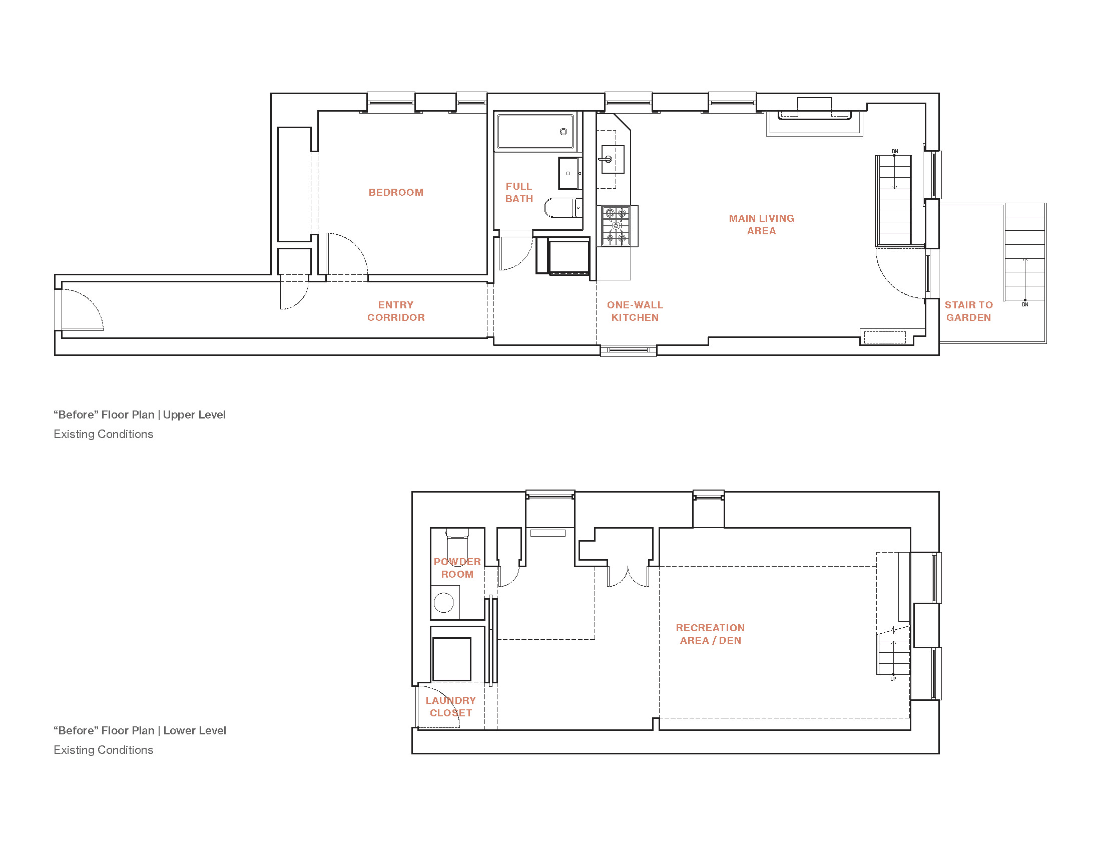
Adjoin is an interior renovation of a one-bedroom garden duplex apartment in Brooklyn, split between the basement and ground levels of a small co-op building. The homeowners were planning for their first child and wanted to upgrade the property to better accommodate their lifestyle and expanding family. While the overall square footage was sufficient to do so, the apartment was not permitted to expand to a two-bedroom unit or to transform the lower level powder room to a three-fixture full bathroom. This led to a design approach that relied much more on millwork elements to imprint a new layout, with only minor adjustments to partitions.
Beyond the growth of their family, the homeowners also both work from home and enjoy entertaining friends–activities that were hard to accommodate easily relying on furniture alone. The apartment needed more built-in storage and customization to enable a more efficient integration of elements to support work sleep, leisure, and interacting with other family and guests. To better allow for a full range of primary uses, we looked to optimize the available open living space and incorporate hybrid functional possibilities through a series of adjoining use zones.
Working with the existing conditions, the layout of the upstairs living area was constrained by doors, windows, a fireplace, and a staircase, leaving open only one section of wall area and the center of the room to accommodate movement through and any other elements. The lower level, by contrast, offered a fairly spacious open-plan area but was underutilized given its lack of storage and differentiation to accommodate specific uses. The apartment also boasted appealing features like exposed brick walls and structural beams, windows throughout both levels and with multiple exposures, an attractive one-wall kitchen with quality appliances, a working fireplace and access to a private rear garden. Aside from these qualities, it lacked palette coherence and spatial clarity, with too many competing finishes and furnishings overloading the space. Our goal, then, was to focus on the primary living areas across the two floors, stripping them back to those core assets to integrate an overlay of new finishes, millwork and furnishings that could reorganize and transform the living experience.
By creating a continuous rhythm of adjoining zones extending one to the next throughout the entire bi-level living area, the new design situates a series of clear-use areas, each linking to the next through a shared element to delineate a soft edge or threshold while also contributing function-oriented in both directions. Upstairs, a new kitchen island with integrated storage and a waterfall stone top expands the functionality and capacity of the kitchen for cooking and creates a spacious surface to congregate around for entertaining and dining. In the next adjacent zone, we also added a low wall to conceal the stairwell and create an anchoring surface for a custom dining banquette and table large enough to seat six while also offering a flexible work area. Along the continuous wall shared by these two zones, a full-height wall of storage cabinets and niches accommodates everything from pantry and other kitchen storage to a liquor cabinet as well as open shelving for books and records.
The lower level was reworked to incorporate a sleeping area and set of closets, a family lounge area that doubles as a home office, while also expanding the footprint for the bathroom as much as was allowable. A millwork partition divides the space loosely into two halves, partially enclosing the sleeping area that sits up against its solid base, while keeping the two zones visually open and connected via open floating shelves above. Circulation is carefully threaded through and around these interconnected areas, with the connective architectural objects structuring a fluid path through a tightly packed space. The renovation also introduced a mix of new finishes, colors and textures intended to complement the existing brick and oak floors while also adding multiple new layers to provide both consistency and diversity in the material palette from zone to zone. These layers encompassed both warm and cool tones, ribbed and satin textures, including warm oak and slate blue satin painted cabinetry, pietra cardosa stone countertops, sage green tile and cabinetry in the bathroom, with accents of black metal and hardware, ribbed glass, along with a variety of satin white glass and brass light fixtures.

PHOTOGRAPHY BY
Steve Freihon
![]() | ![]() |
|---|
PROJECT PRESS
The New York Times, 28 June 2024
"Three People in a One-Bedroom Apartment? They Found a Clever Solution."
AN Interior, 04 October 2024









